Sabine.

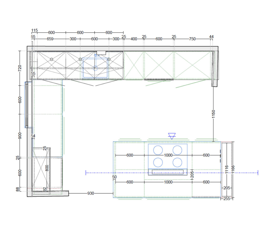
Eine moderne, offene Küche mit puristischem Design. Das Zusammenspiel von dunklen Fronten, Holzakzenten und viel Licht macht diese Küche zu einem echten Hingucker.

5 Liked